XT自清洗过滤器
X系列全自动自清洗过滤器是一种电动吸吮式过滤器,通过一台电力马达驱动清洗机构,对于不同的使用场合可配备20微米-500微米的滤网,2”-24”的口径。X系列过滤器有三种结构型式:XT立式、XM卧式。
型号说明
例 X T M G D-200/10
X代表吸吮式清洗,T代表立式安装,M代表立式安装,
G代表高压辅助冲洗泵,D代表大流量,200进出口径,
10代表公称压力。
过滤过程
脏水从过滤器进水口进入,然后从滤网内向外通过细滤网,此时比网孔粗的杂质被拦截下来并积累在滤网的内表面形成滤饼,这些滤饼同时能够捕捉水中的一些更细小的杂质。
污水在排污时通过排污口排出,压差开关持续检测滤网内外的压差,当达到预设值时将传递一个开关信号到控制箱启动一次清洗循环。
自清洗过程
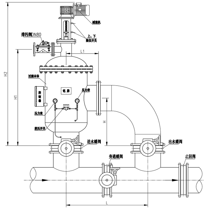
过滤器的清洗机构是一个不锈钢304材质,旋转及上下运动的吸吮扫描器,它是空心结构,在吸污器上均匀分布着若干个吸吮口,吸吮扫描器内部与一个3”电动排污阀相通,在电动排污阀打开时,过滤器内部水压与外部大气之间形成的压差使每个吸嘴产生强劲吸力,在每个吸吮口,水流从滤网外向内反向高速流出将杂质冲下来进入扫描器并通过排污阀排出,吸吮口处的高速反向水流足以将滤网上的顽固杂质吸走。吸吮扫描器由一个连有丝杆装置的双向电力马达驱动,按照固定的转速作螺旋往复式的运动,这样多个吸嘴就能吸遍整个滤网内表面,这个过程大约需要30-120秒钟。在整个反清洗过程中,系统不断流。
控制系统
采用工业单片PLC自动控制,中文或英文。可根据压差或定时控制过滤器自动清洗,并可手动、强制清洗。现场可设定过滤时间、清洗时间。运行信号、清洗信号、故障信号输出及485通讯接口。
电动吸吮式自动清洗过滤器
过滤器壳体:碳钢喷环氧树脂、不锈钢、双相钢
滤网:不锈钢、双向钢
清洗装置:不锈钢、双相钢
排污阀:铸铁
密封圈:丁晴橡、胶硅橡胶、
控制箱: PVC
应用范围
1、冷却水处理——冷却塔、补充水系统、空调系统、直流系统水过滤,减少热交换器内沉淀物的产生,保持其冷却效果。
2、原水处理——可对地表河水、湖水、海水、水库水、井水及地下水进行过滤,除去沙子、细菌、藻类、有机物等等。
3、工业循环用水过滤——在对水质有一定要求的设备如:冷却塔、轧机、连铸机、抛光、水泵、电磁阀、离子交换器、喷雾器、热交换器等或供排水管路上使用,可过滤掉水中杂质,避免管路、喷嘴等零部件堵塞。
4、灌溉——尤其适用于高流量、杂质含量高的水源,农业灌溉、喷灌,公园、高尔夫球场、草皮浇灌等。
5、造纸工业——白水过滤。
6、塑料工业——注塑冷却循环水过滤。注塑机
7、膜预处理,树脂预处理,超滤预处理。
8、海水淡化预处理过滤,海水养殖过滤
XT自清洗过滤器 安装方式:立式安装
单台流量:150-1800m3/h,更大流量可由多个单机并联。
公称压力:1.0MPa、1.6MPa
工作压力:0.20~1.2MPa
最高工作温度:60℃
过滤精度:50-800微米。
控制方式:压差、时间及手动
清洗时间:35-120秒。
清洗机构转速:14-20rpm
清洗方式:扫描吸吮式清洗。
清洗压损:0.01-0.08MPa
工作电压:AC 380V,50HZ,三相四线
控制电压:AC220V ,50HZ
液晶显示界面,人性化设计操作简便
XT技术参数
型号 XT-150 XT-200 XT-250 XT-300 XT-350 XT-400 XT-500 管径 (mm) 150 200 250 300 350 400 500 最大流量 (m³/h) 150 300 400 600 900 1200 1800 过滤面积 (cm²) 6500 6500 11500 12500 13500 16500 16500 电动排污阀 DN (mm) 50 50 80 80 80 80 80 一次清洗水量 (L) 150 150 400 400 400 450 450 电机功率 (kW) 0.55 0.55 0.55 0.55 0.55 0.55 0.55 重量约 (kg) 500 500 620 655 720 910 980
表中流量精度为200um.其他技术参数请咨询本公司,
型号 XT-150 XT-200 XT-250 XT-300 XT-350 XT-400 XT-500 H 580 600 720 720 700 800 800 H1 1100 1120 1413 1413 1417 1525 1525 H2 1720 1750 2080 2080 2110 16500 2200 L 880 900 1000 1000 1200 1500 1600 L1 350 350 415 415 475 565 565